
%20-%20copie%203.png)
LA RÉALISATION DE TOUS VOS PROJETS IMMOBILIERS
Description
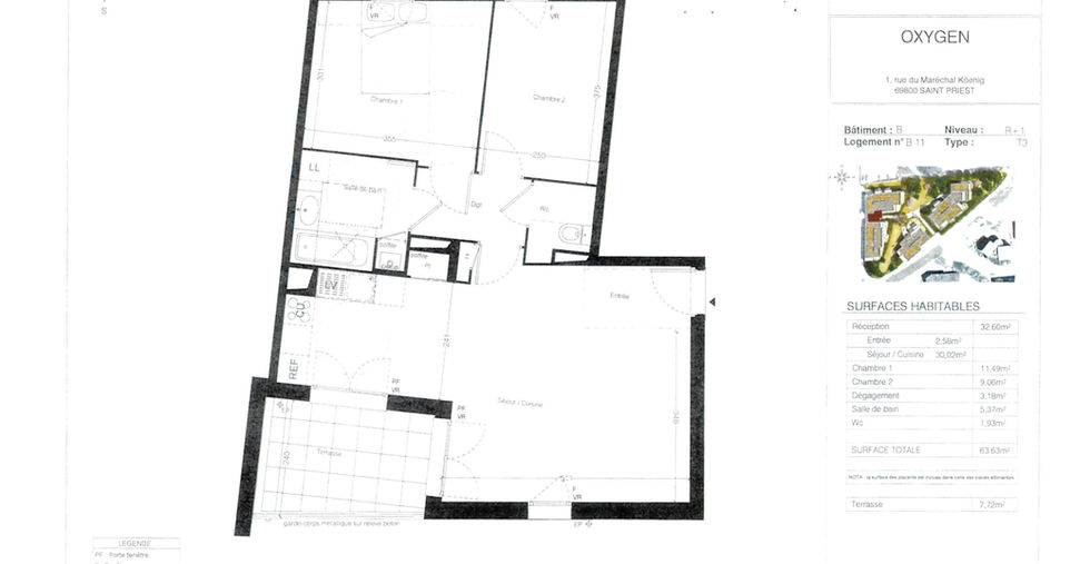
Oxygen, 1 Rue du Maréchal Koenig 69800 Saint Priest, résidence neuve Bâtiment Basse Consommation, au pied du Tramway arrêt « Bel Air »
Résidence entièrement sécurisée avec portail électrique et vidéophone.
Résidence adaptée PMR.
Première occupation pour ce type 3 de 64 m² situé au premier étage avec ascenseur.
Il se compose comme suit :
· une grande pièce de vie (33 m2) avec cuisine américaine aménagée (placards hauts et bas, hotte et plaque de cuisson) donnant sur un grand balcon de 8m2 plein sud sur les jardins.
· Côté nuit : deux chambres (11,5 m2 et 9 m2)
· Une salle de bain indépendante toute équipée, arrivée machine à laver prévue.
· Un wc indépendant.
Un garage privatif en sous sol box fermé.
Peinture blanche surtout les murs
Carrelage dans toutes les pièces de vie
Parquet dans les chambres
Faïence dans la salle de bain
Chauffage au gaz par chaudière individuelle.
Loyer de 720€
Charges de 70€ (provisions avec régularisation annuelle)
Total : 790 €
Dépôt de garantie de 720 €.
Loyer payable en début de mois.
Frais d’agence de 827€ TTC dont 190 € d’état des lieux.
Contact Agent
Marie-Laure FERRIER
06 80 57 96 36

Détails
Type
Appartement T3
Chambres
2
Salle de bain / d'eau
1
Superficie
64 m2
Étage
1
Année de construction
Situation géographique
1 Rue du Maréchal Koenig 69800 Saint Priest










